Unser Grundstück
Tja, auf dieser Seite werden wir mal die in den einzelnen Artikeln geposteten Bilder und Daten zu unserem Grundstück festhalten bzw. gesammelt anzeigen. Mittlerweile sind wir dann auch endlich offizielle Grundstücksbesitzer. Jetzt fehlt nur noch das fertige Haus darauf. Aber bis wir soweit sind, werden wohl noch ein paar Tage / Wochen / Monate vergehen.
Unser Grundstück am 21.04.2010
Unser Grundstück am 03.07.2010:
Unser Grundstück am 14.08.2010:
(Irgend jemand hat das Unkraut geschnitten und entfernt. Nur wer?)
Unser Grundstück am 21.09.2010:
(Erdarbeiten haben begonnen: Mutterboden ist abgeschoben)
Unser Grundstück am 22.09.2010:
(Baugrube fast vollständig ausgehoben)
Unser Grundstück am 23.09.2010:
(Baugrube fertig, inkl. Vlies und Körnung)
Aktueller Status / bisheriger Verlauf:
- Grundstücksuche
- Entsprechendes Grundstück ausgewählt
- Verhandlungen mit dem Grundstücksverkäufer
- Angebote für Bodengutachten in Auftrag gegeben
- Bodengutachten für das ausgewählte Grundstück erstellen lassen
- Weitere Verhandlungen mit dem Grundstücksverkäufer
- Vermesser beauftragt für Grundstückstrennung
- Trennung des Grundstücks erfolgt
- Notartermin steht fest bzw. ist terminiert
- Unterschriften beim Notar geleistet
- Notarrechnung erhalten und überwiesen
- Grunderwerbsteuerbescheid erhalten und überwiesen
- Schreiben vom Notar: Fälligkeitsvoraussetzung liegt vor
- Vorkausrechtbescheinigung: Verwaltungsgebühr an die Komune überweisen
- Bank Fälligkeitstermin bestätigt und Überweisung terminiert angewiesen
- Grundstück ist bezahlt – Geld wurde überwiesen
- Grundstückverkäufer informierte Notar über erhaltenen Betrag
- Gerichtskasse Köln: Streichung des Vorkaufsrecht und Eintragung Grundbuch bezahlen
- Hausnummer von der Stadt Eschweiler erhalten
- Notarieller Kaufvertrag mit Siegel erhalten
- Auszug aus dem Grundbuch erhalten: Wir sind offizielle eingetragene Eigentümer des Grundstücks!
- Grobabsteckung durch den Vermesser und Mutterboden abgeschoben
- Baugrube ausgehoben, Kellerkörnung eingebracht inkl. Vlies
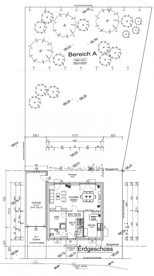
Und so soll das dann mal mit Garage, Haus, Auffahrt, Terrasse und Garten aussehen:

